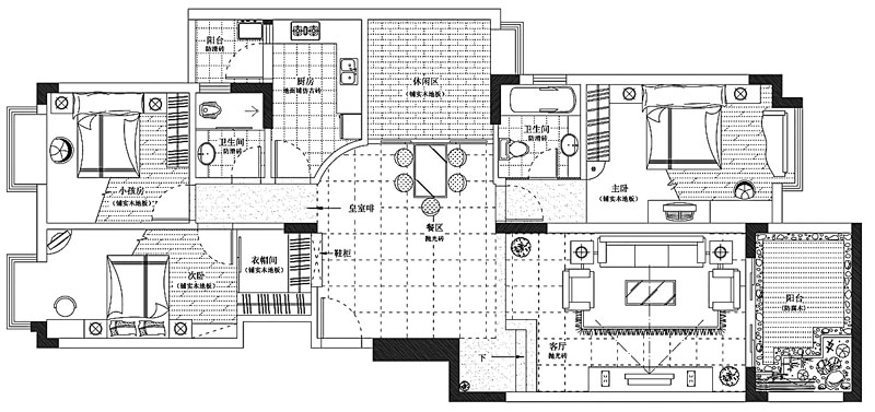
首页 > 装饰装修 > 广州南埔海滨花园雅居设计图片(6张) > 广州南埔海滨花园雅居设计图片 第1张

广州南埔海滨花园雅居设计图片 - 第1张

第 1 / 6 张
一夕一夏上传广州南埔海滨花园雅居设计图片 图集中 / 共有 6 张图片
最近更新: 广州领峰样板2图片 秋冬保暖手套图片 野生蜥蜴高清特写图片 传统的有轨火车图片 黑白色系的家居装饰图片 土色之居室内设计图片 温哥华香格里拉大酒店休闲健身图片 麻雀高清图片 藤蔓上的紫葡萄图片 美丽迷人的马尔代夫海滨风景图片 圣托里尼岛美景图片 神奇的极光图片 满洲里建筑图片 河北沽源坝上草原闪电河自然风景图片 杂乱的鹅卵石图片 高空云层上的飞机机翼图片 冰凉爽口的冰激凌图片 被遮挡住的月球图片 沙滩排球运动图片 又瘦又小的蜘蛛猴图片